VERKAUFT!!! Modernisierungsbedürftiges Einfamilienhaus in Bahnhofsnähe














- Objektart
- Haus
- Objekttyp
- Einfamilienhaus
- Vermarktungsart
- Kauf
- PLZ
- 14913
- Ort
- Jüterbog
- ImmoNr
- 24033
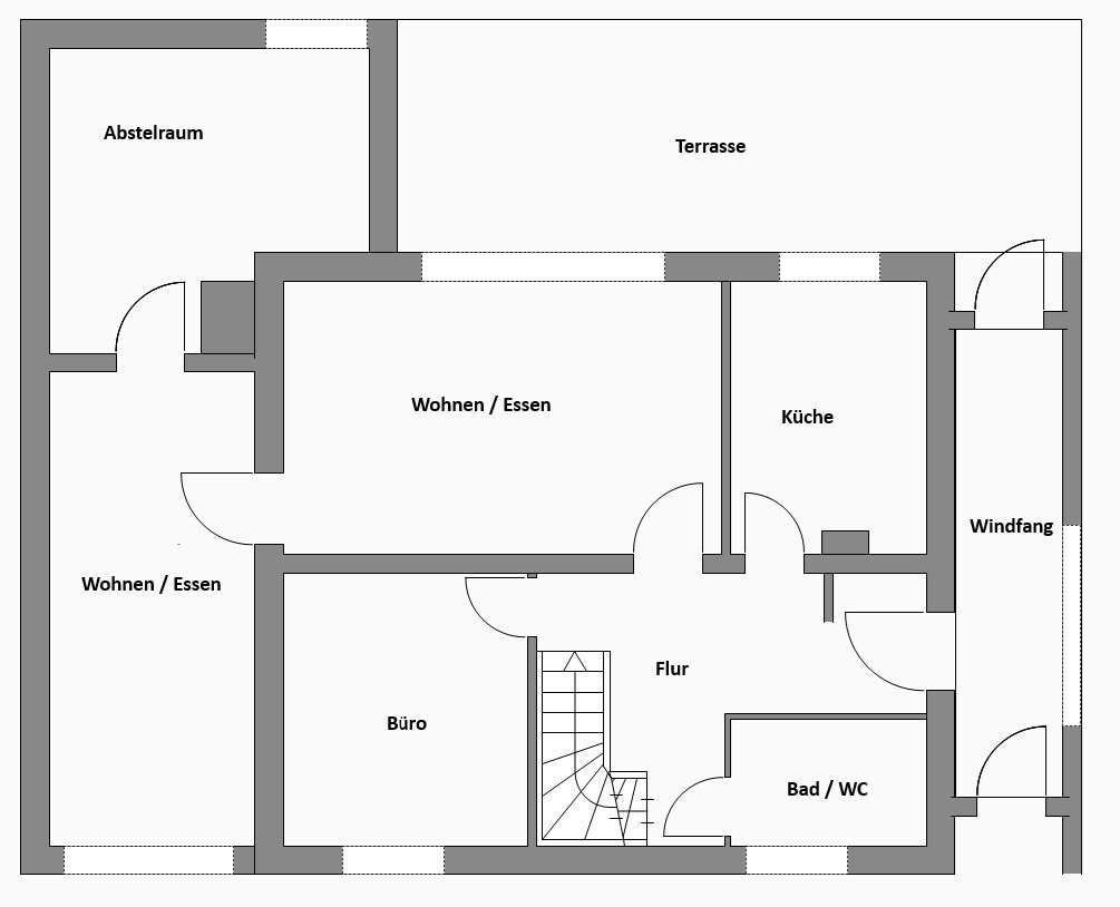
- Wohnfläche
- ca. 120 m²
- Grundstücksgröße
- ca. 1.165 m²
- Nutzfläche
- ca. 60 m²
- Anzahl Zimmer
- 6
- Anzahl Badezimmer
- 1
- Kaufpreis
- 169.000,00 €
Beschreibung
Dieses vollunterkellerte Einfamilienhaus bietet Ihnen auf ca. 120 m² Wohnfläche viel Raum für individuelle Gestaltung und Entfaltung. Mit insgesamt 6 Zimmern, einer Küche und einem Duschbad ist dieses Haus ideal für Familien oder Paare, die Wert auf Platz und eine gute infrastrukturelle Lage legen. Einkaufsmöglichkeiten, Schulen und öffentliche Verkehrsanbindungen sind in unmittelbarer Nähe und bieten Ihnen eine hohe Lebensqualität. Die ruhige Nachbarschaft und die grüne Umgebung machen dieses Haus zu einem perfekten Rückzugsort.Das großzügige Grundstück mit einer Fläche von ca. 1.165 m² ist eingewachsen und bietet Ihnen viel Privatsphäre. Besonders hervorzuheben ist der Blick über Jüterbog, den Sie vom hinteren Teil des Grundstücks genießen können. Hier können Sie entspannen, die Natur erleben und Ihre Freizeit im Freien verbringen.
Das Haus benötigt eine umfassende Modernisierung, was Ihnen die Möglichkeit gibt, Ihre eigenen Vorstellungen und Wünsche zu verwirklichen. Nutzen Sie die Chance, dieses Objekt nach Ihren Vorstellungen zu gestalten und ihm neuen Glanz zu verleihen.
Dieses Einfamilienhaus in Jüterbog ist eine hervorragende Gelegenheit für alle, die ein renovierungsbedürftiges Objekt in einer attraktiven Lage suchen. Lassen Sie Ihrer Kreativität freien Lauf und verwandeln Sie dieses Haus in Ihr Traumdomizil! Vereinbaren Sie noch heute einen Besichtigungstermin und entdecken Sie das Potenzial, das diese Immobilie zu bieten hat.
Lage
Der Ort Jüterbog ist ein Teil der Gemeinde Jüterbog im Landkreis Teltow Fläming. Die Gemeinde Jüterbog zählt mit ihren Ortsteilen Fröhden, Grüna, Kloster Zinna, Markendorf, Neuheim, Neuhof und Werder ca. 12.000 Einwohner. Jüterbog ist der bevölkerungsreichste Ortsteil dieser Gemeinde und verfügt über eine sehr gute Infrastruktur wie Einkaufsmöglichkeiten, Schulen, Ärzte usw. An Jüterbog grenzt die Fläming-Skate. Diese lädt zum ausgiebigen Sport treiben auf dem Rad, den Inlinern, zu Fuss oder anderen Fortbewegungsmitteln ein. Aufgrund der beliebten Lage hat die Einwohnerzahl in den zurückliegenden Jahren zugenommen. Der Ort liegt verkehrsgünstig an der Bundesstraße B 101 über die die Bundeshauptstadt Berlin in 45 min erreichbar ist. Die Landeshauptstadt Potsdam ist ebenfalls in ca. 45 mit dem PKW zu erreichen. Außerdem bietet der nahegelegene Regionalbahnhof eine sehr gute Anbindung nach Berlin (Hauptbahnhof). Dieser ist stündlich, zu den Hauptverkehrszeiten halbstündlich, in weniger als 45 Minuten zu erreichen.Ausstattung
- vollunterkellerter Altbau- viele Zimmer
- Duschbad
- großer Eingangsbereich
- schöne Terrasse
- Nebengelass
- Tiefgarage
- schönes und eingewachsenes Grundstück
- viel Platz zur Entfaltung und Verwirklichung eigener Ideen
Sonstige Angaben
Unser Service für Sie als Eigentümer: Wir bewerten gern kostenfrei Ihre Immobilie entsprechend dem aktuellen Marktwert, entwickeln eine Ihrem Objekt angepasste Verkaufsstrategie und stehen Ihnen bis zum erfolgreichen Verkauf zur Verfügung. Wir können Ihnen bereits in den ersten Gesprächen mitteilen, wie viele vorgemerkte Suchinteressenten wir haben. Kommen Sie einfach bei uns vorbei, rufen Sie uns an oder senden Sie uns eine E-Mail – wir freuen uns, Sie kennen zu lernen.Wir weisen darauf hin, dass die von uns weitergegebenen Objektinformationen, Unterlagen, Pläne etc. vom Veräußerer bzw. Vermieter stammen. Eine Haftung für die Richtigkeit oder Vollständigkeit der Angaben übernehmen wir daher nicht. Es obliegt daher unseren Kunden, die darin enthaltenen Objektinformationen und Angaben auf ihre Richtigkeit hin zu überprüfen.
Wir bitten Sie um Verständnis, dass wir die vollständigen Angaben zur Immobilie nur übermitteln können, wenn uns alle Kontaktdaten des Interessenten (Wohnanschrift, Telefon, …) vorliegen.
Seiten: 1